My Shack
Related Links
Special Events
Antenna
My Cabin
St. Martin DX
K8RLM
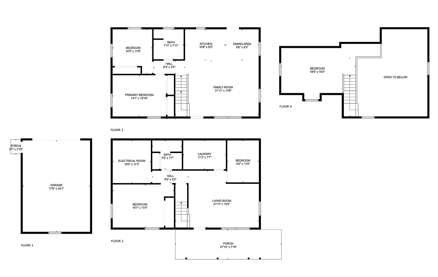
House On The Lake

Lake House with "NO LAKE".









Inside the House









The Lake







The Lots Across the Road







Wixom Lake & Edenville Dam

Edenville Dam was an earthen embankment dam at the confluence of the Tittabawassee River and the Tobacco River in Mid Michigan, forming Wixom Lake. The dam was about one mile (1.6 km) north of Edenville, mostly in the southeast corner of Tobacco Township in Gladwin County, with its southeastern end reaching into Edenville Township in Midland County. Its height was 54 feet the length was 6,600 feet at its crest.

The dam was built in 1924 for hydroelectric power and flood control The dam was equipped with two 2.4 MW turbines capable of generating 4.8 MW of electricity in total. The dam was built in 1924 by Frank Isaac Wixom, after whom the reservoir formed by the dam is named. Wixom used to own a circus before he built the dam. The dam is privately owned and operated by Boyce Hydro Power, a company based in Edenville.

On 19 May 2020 at 17:46 EDT heavy rainfall pushed inflows far beyond design capacity and the east embankment of Edenville Dam gave way. Immediate, mandatory evacuations were ordered for residents of Edenville and nearby Sanford. Roughly 10 miles downstream the impounded water overtopped – but did not breach – the Sanford Dam, forcing the evacuation of much of Midland another six miles downstream.




Home
wixom